Ogłoszenie dodane przez niezalogowanego użytkownika
Placówka medyczna/przychodnia lekarska do przejęcia – Warszawa, Mokotów
Dodane: 12-03-2025 07:22
Ważne do: 11-04-2025
| Kategoria | Gabinety i przychodnie - sprzedam |
| Region | mazowieckie |
| Data dodania ogłoszenia: | 9 miesięcy temu |
| Cena: | 400 000 zł |
Do przejęcia funkcjonująca przychodnia lekarska w atrakcyjnej lokalizacji na Mokotowie w Warszawie. Oferta obejmuje odstąpienie umowy najmu lokalu oraz sprzedaż pełnego wyposażenia medycznego i biurowego.
Cena: 400 000 zł netto
Lokal
Adres: ul. Biały Kamień 2, 02-593 Warszawa
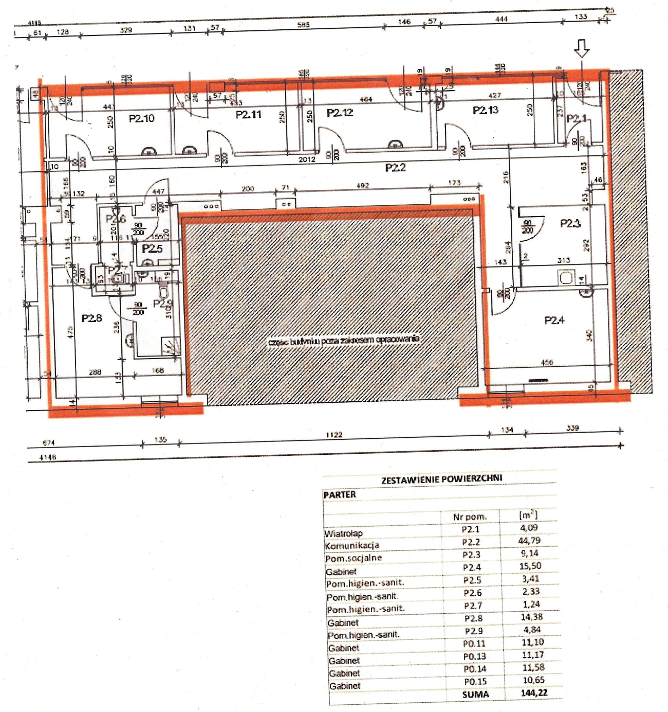
Powierzchnia: 144 m2
Układ pomieszczeń: recepcja, korytarz, 5 gabinetów, pokój zabiegowy
Umowa najmu na czas nieoznaczony
Czynsz: 16 600 zł/miesiąc
Lokal posiada pozytywną opinię Sanepidu
Wyposażenie
Przychodnia jest w pełni wyposażona i gotowa do kontynuowania działalności. W skład wyposażenia wchodzą m.in.:
Meble i sprzęt biurowy: biurka (8x), krzesła biurowe (10x), szafy medyczne zamykane na klucz, komoda z szufladami, lada recepcyjna.
Sprzęt medyczny: leżanki (5x), otoskopy (3x), stetoskopy (3x), termometry elektroniczne (3x), ciśnieniomierze elektryczne (6x), pulsoksymetry (2x), glukometr.
Wyposażenie okulistyczne: autorefraktometr NIDEK AR-800, tonometr bezkontaktowy Nidek NT-1000, lampa szczelinowa TAKAGI MT-304, rzutnik optotypów CP-30 SHIN NIPPON, testy Ishihary, zestaw soczewek próbnikowych, tablice okulistyczne (2x), stolik okulistyczny.
Dodatkowe wyposażenie: elektrokoagulator, przewijak dla niemowląt (2x), waga dla niemowląt, waga ze wzrostomierzem, ciemnia kabinowa do badań psychotechnicznych, witryna chłodnicza BEKO na odpady medyczne, terminal POSNET z ładowarką.
Sprzedaż dotyczy wyłącznie odstąpienia umowy najmu oraz wyposażenia – bez przenoszenia działalności gospodarczej.
Cena: 400 000 zł netto
Lokal
Adres: ul. Biały Kamień 2, 02-593 Warszawa
Powierzchnia: 144 m2
Układ pomieszczeń: recepcja, korytarz, 5 gabinetów, pokój zabiegowy
Umowa najmu na czas nieoznaczony
Czynsz: 16 600 zł/miesiąc
Lokal posiada pozytywną opinię Sanepidu
Wyposażenie
Przychodnia jest w pełni wyposażona i gotowa do kontynuowania działalności. W skład wyposażenia wchodzą m.in.:
Meble i sprzęt biurowy: biurka (8x), krzesła biurowe (10x), szafy medyczne zamykane na klucz, komoda z szufladami, lada recepcyjna.
Sprzęt medyczny: leżanki (5x), otoskopy (3x), stetoskopy (3x), termometry elektroniczne (3x), ciśnieniomierze elektryczne (6x), pulsoksymetry (2x), glukometr.
Wyposażenie okulistyczne: autorefraktometr NIDEK AR-800, tonometr bezkontaktowy Nidek NT-1000, lampa szczelinowa TAKAGI MT-304, rzutnik optotypów CP-30 SHIN NIPPON, testy Ishihary, zestaw soczewek próbnikowych, tablice okulistyczne (2x), stolik okulistyczny.
Dodatkowe wyposażenie: elektrokoagulator, przewijak dla niemowląt (2x), waga dla niemowląt, waga ze wzrostomierzem, ciemnia kabinowa do badań psychotechnicznych, witryna chłodnicza BEKO na odpady medyczne, terminal POSNET z ładowarką.
Sprzedaż dotyczy wyłącznie odstąpienia umowy najmu oraz wyposażenia – bez przenoszenia działalności gospodarczej.













